Realizačný projekt domu 26
Realizačný projekt domu 26
RD26
RD26
RD26
RD26
RD26
RD26
RD26
RD26
RD26
RD26
RD26

RD26
Rodinný dom 26

Parametre

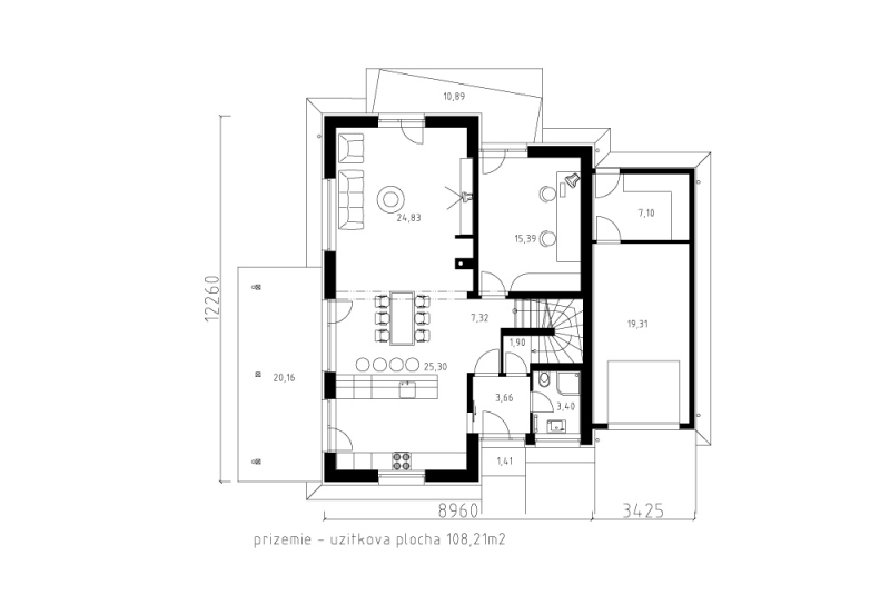
Prízemný rodinný dom 26 s obytným podkrovím a sedlovou strechou, je určený na rovinatý alebo mierne svahovitý terén. Ideálna orientácia je východ - západ. Vďaka dispozičnému riešeniu a tomu, že má jednu plnú stenu bez okien je vhodný aj pre najužšie pozemky.

Pristavaná garáž má plochú strechu. Prízemie tvorí otvorený priestor centrálnej haly, schodiska do podkrovia, kuchyne a obývacej izby. Z obytnej haly je prístupná aj spálňa. Do haly sa vchádza cez predsieň, z ktorej je prístupná komora, kúpeľňa a kuchyňa. Spálňa na prízemí umožňuje dokončiť podkrovie neskôr ako prízemie. Súčasťou obývacej izby je krb. V podkroví sú 3 izby, veľká kúpeľňa a priestor pre kotol a zásobník TÚV resp. kotol je možné umiestniť aj do komory za garážou. Z dvoch izieb sa vychádza balkón.

Počet osôb:5-6
Obytné miestnosti:5
Úžitková plocha:186.67m2
Obytná plocha:138.83m2
Zastavaná plocha:131.49m2
Obostavaný priestor:535.63m3
Výška hrebeňa strechy od 0,00:7.31m
Orientácia hlavného vstupu:V, SV, JV
Cena (vrátane DPH)
stav. materiálu:dohodou
stavby na "kľúč":dohodou
Cena990,- €
sendFriend
 

Pošli známemu

Vaše meno:
Email známeho:

Osobné údaje

Platba

  spoluinvestor je aj manžel/manželka
Zaplatím v hotovosti
bankovým prevodom :
Peňažný ústav: VÚB BA, Ružinov, číslo účtu: 58203062/0200

bankovým prevodom :
Peňažný ústav: Tatra banka, a.s., číslo účtu: 2620768319/1100

Poštovou poukážkou
Vysvetlívky:
* - povinný údaj

overovací kód